Family Residence Development
Location: Roxbury, Boston, MA
Project Type: New Construction Real Estate Development
Target Completion Date: Spring 2027
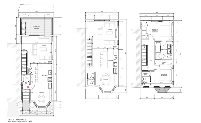
Details: Two 2-family residence. The two units will consist of an upper unit with four bedrooms (two on the 3rd floor and two on the 4th floor) with common living space on the second floor. And a Lower unit with two bedrooms on the basement level and common living space on the first floor. There are exterior decks at the roof (accessed from the upper unit) and level one (accessed from the lower Unit). The main entrances to both units will be off of a shared landing at the first floor level. Access to Utility connections and meters is via the private way on the east side of the building. The form and exterior architecture for the building is intentionally designed to integrate into the Existing fabric of the neighborhood. The floor levels, windows and roof plane are aligned to match the Adjacent row houses. The front facade is intended to closely match the materials and details of the Adjacent 1800’s masonry homes. The east facade is an organized transition from masonry at the front to more modern panelized materials at the rear facade.
Architect: Social Impact Collective
*Image Credit: Social Impact Collective
